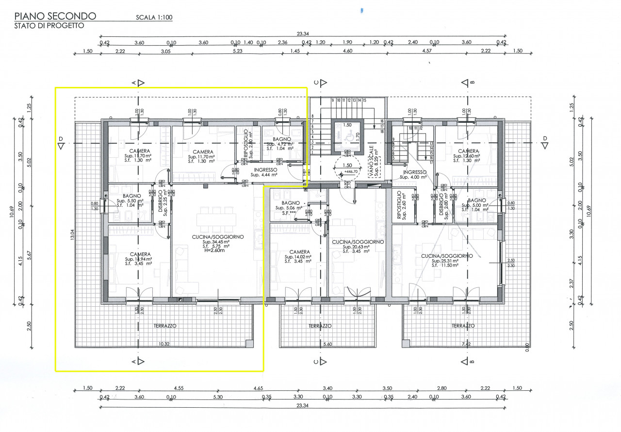
Tricamere con terrazza in palazzina in costruzione

Trento, Martignano, al secondo piano di una palazzina in costruzione con sole 9 unità abitative, proponiamo in vendita appartamento tricamere in classe A+ con ampia terrazza. L'immobile, libero su tre lati, si compone di ingresso, soggiorno con angolo cottura, ampia camera matrimoniale, due spaziose camere singole, doppi servizi finestrati e ripostiglio. Completa la proprietà garage al piano interrato. Pannelli fotovoltaici. Riscaldamento a pavimento centralizzato con contachilocalorie. Consegna prevista giugno 2027.
Tricamere con terrazza in palazzina in costruzione

Dettagli

Riferimento TN01175
Prezzo 680.000 €
Contratto vendita
Tipologia Appartamento
Comune Trento
Zona Martignano
Camere 3
Bagni 2
Mq 110

 

2
2
A2
0.00
n/d

INFORMAZIONI EXTRA

AMBIENTI

Soggiorno angolo cottura
Ripostigli 1
Terrazzi 1
Garage 1

LIVELLI & COMFORT

Livelli Piano interrato , Piano terra , Primo piano , Ultimo piano
Piano numero 2
Contacalorie
Riscaldamento a pavimento
Riscaldamento centralizzato
Ascensore
Porta blindata

Contattaci

Condividi