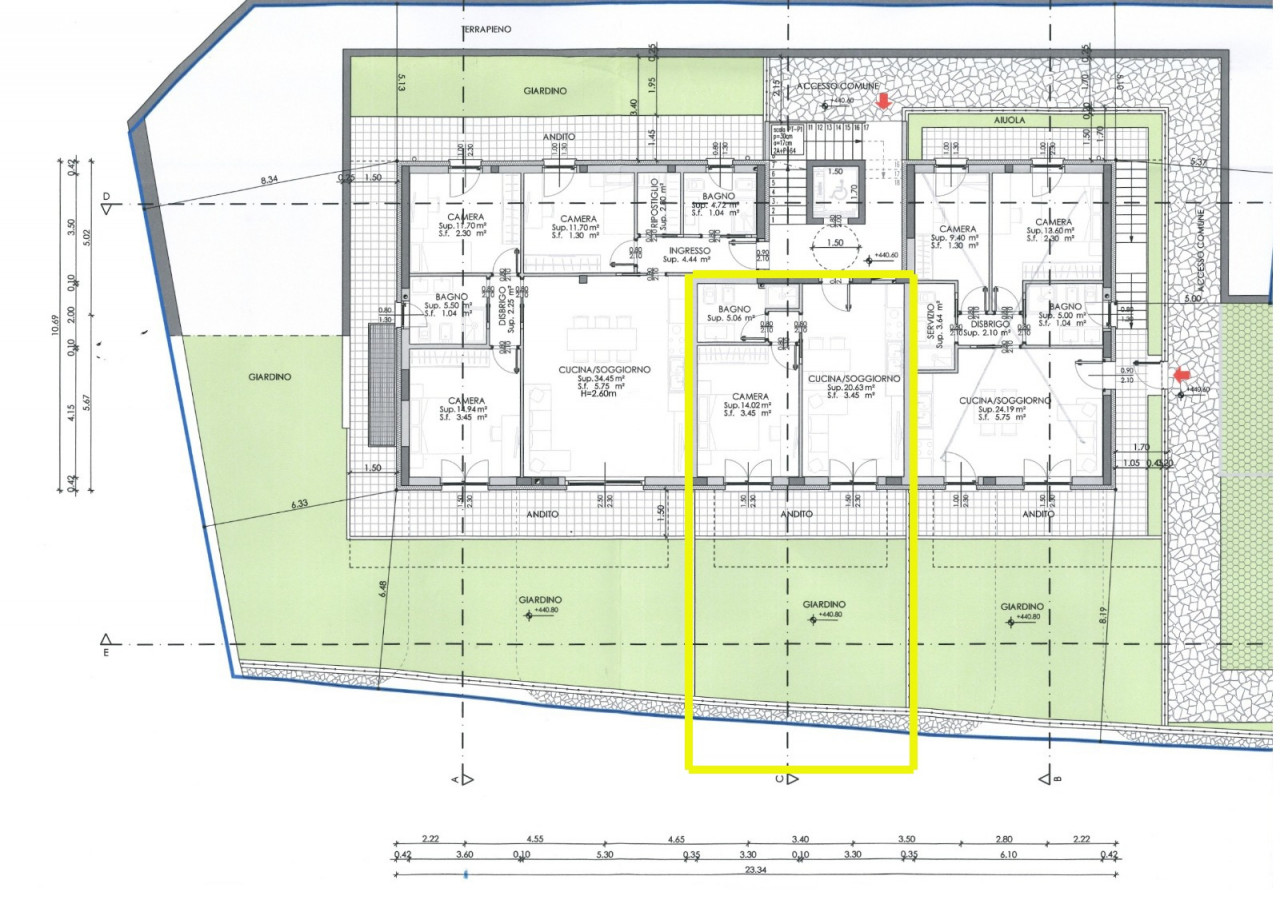
Miniappartamento con giardino in palazzina in costruzione

Trento, Martignano, al piano terra di una palazzina in costruzione con sole 9 unità abitative, proponiamo in vendita miniappartamento in classe A+ con giardino. L'immobile si compone di ingresso su soggiorno con angolo cottura, ampia camera matrimoniale e bagno finestrato. La zona giorno affaccia su un giardino privato di circa 50mq. Completa la proprietà garage al piano interrato. Pannelli fotovoltaici. Riscaldamento a pavimento centralizzato con contachilocalorie. Consegna prevista giugno 2027.
Miniappartamento con giardino in palazzina in costruzione

Dettagli

Riferimento TN01172
Prezzo 300.000 €
Contratto vendita
Tipologia Appartamento
Comune Trento
Zona Martignano
Camere 1
Bagni 1
Mq 50

 

2
2
A2
0.00
n/d

INFORMAZIONI EXTRA

AMBIENTI

Soggiorno angolo cottura
Giardino
Garage 1

LIVELLI & COMFORT

Livelli Piano interrato , Piano terra , Primo piano , Ultimo piano
Contacalorie
Raffreddamento a pavimento
Riscaldamento centralizzato
Ascensore
Porta blindata

Contattaci

Condividi